



























Prime Coastal Corner Section at Hobbs Bay!
From $2,599,000
Lot 6, Hobbs Bay Estate, Gulf Harbour
Section size 807㎡
House size 242㎡
- Beds3
- Bathrooms2
- Receptions2
- studies1
- Parking2
or email janewelch@signature.co.nz
Visit Signature Homes Rodney & North Shore
Enquire about this Package
Prime Coastal Corner Section at Hobbs Bay!
Lot 6, Hobbs Bay Estate, Gulf Harbour
Space to stretch, unwind, and breathe in Hobbs Bay
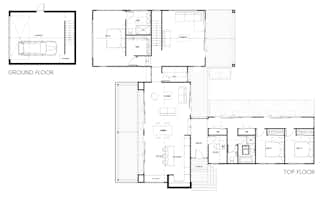
Your new coastal lifestyle awaits at Lot 6, Hobbs Bay This architecturally designed home boasts an open-plan kitchen, living, and dining area that seamlessly extends to a spacious balcony - ideal for enjoying the sun and stunning sea views. A private wing features two generous bedrooms, a study, and a family bathroom - ideal for families or guests. The luxurious master suite offers ocean views, a large ensuite, and a walk-in wardrobe. The oversized lounge flows to a covered portico, wrap-around deck, and private backyard, offering the perfect setting for entertaining.
Titles are now issued, and for a limited time, the WaterCare Infrastructure Growth Charge (valued at over $25,000) is included as part of this exclusive offer. Get in touch with the Signature Homes team today to secure this opportunity and start living your dream coastal lifestyle.
Hobbs Bay Estate is a premium waterfront subdivision by the renowned Hopper Developments. It features spacious residential lots, stunning sea views across the harbour to Auckland CBD, wide roads, and convenient boat and walking access to Hobbs Bay Beach.
Key Features:
- Custom high-end open-plan kitchen, living & dining
- Spacious balcony with stunning sea views
- Private wing with two bedrooms, study & family bathroom
- Luxurious master suite with ocean views, ensuite & walk-in wardrobe
- Expansive lounge opening to a covered portico
- Wrap-around deck & private backyard
- Double garage on the lower level with off-street parking
Pricing is indicative and subject to final earthworks and specifications. Excludes soft landscaping & fencing.
Package includes
- Signature Homes market-leading Building Guarantees
- Your choice of internal and external colours
- Fixed Price Guarantee
Floorplans: Prime Coastal Corner Section at Hobbs Bay!




Location
Lot 6, Hobbs Bay Estate, Gulf Harbour
