













Picture Perfect in Aurora - Fixed Price Package
From $969,900
5 Oralee, (Lot 90), Aurora, Peacocke, Hamilton
Section size 400㎡
House size 151㎡
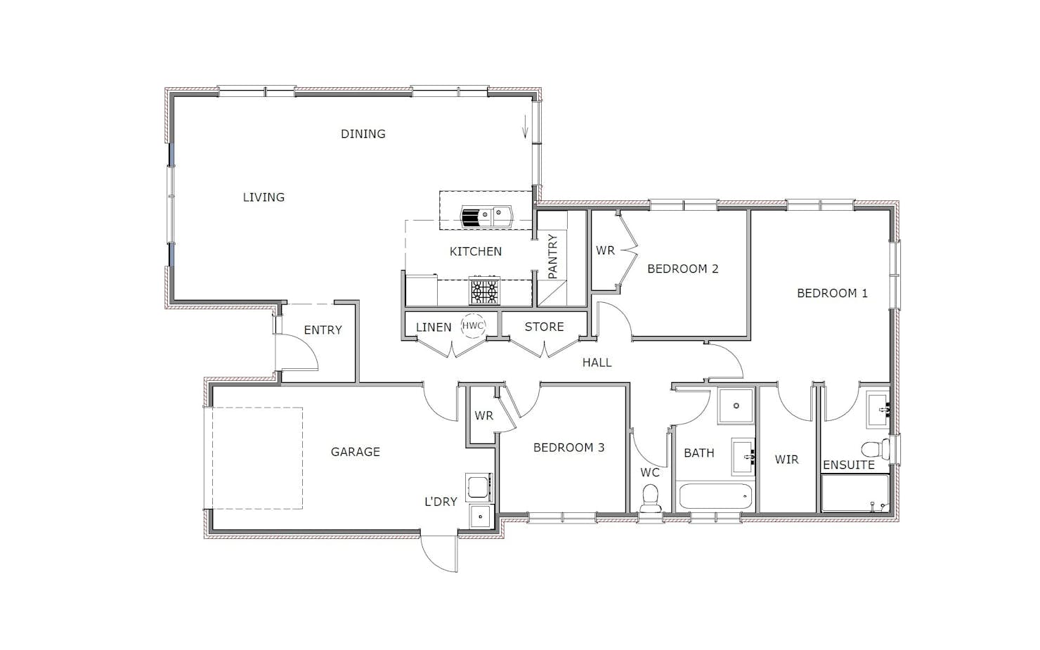
- Beds3
- Bathrooms2.5
- Receptions1
- Parking1
Enquire about this Package
Picture Perfect in Aurora - Fixed Price Package
5 Oralee, (Lot 90), Aurora, Peacocke, Hamilton
This home is now under contract. Contact our team for info on similar packages available.
Secure your home in the popular Aurora Subdivision
Build your dream home with Signature Homes Waikato and our fixed price guarantee.
Located on an elevated site, Lot 90 is a great spot within the popular Aurora Subdivision and boasts north-facing views of Hamilton. Book a site visit with our team today.
Choose your preferred front facade look for this Package:
- Option 1 - $969,900
- Option 2 - $979,900
This House & Land Package Includes:
- 400 sqm Freehold Section
- 151 sqm Home
- 3 Bedrooms
- 2 Bathrooms
- Open plan, north-facing Kitchen, Dining, and Living
- Heatpump
- Clothesline
- Fencing
- Exterior Concrete
- Letterbox
- Hydro-seeded Lawns
- Landscaping allowance
*Images are an artist’s impression
This house & land package is yet to be built, giving you the chance to choose your colours and product selections whilst working with our Colour Consultant.
Package includes
- Signature Homes market-leading Building Guarantees
- Your choice of internal and external colours
- Fixed Price Guarantee
Floorplans: Picture Perfect in Aurora - Fixed Price Package




Location
5 Oralee, (Lot 90), Aurora, Peacocke, Hamilton
