







































Perfect Family Living in Paerata Rise - 100% Fixed Price
From $1,491,249
Lot 145, Stage 10A, Paerata Rise
Section size 567㎡
House size 200㎡
- Beds4
- Bathrooms2
- Receptions2
- Parking2
or email Paulprime@signature.co.nz
Visit Signature Homes Papakura & Franklin
Enquire about this Package
Perfect Family Living in Paerata Rise - 100% Fixed Price
Lot 145, Stage 10A, Paerata Rise
Modern home with an ideal layout for families or empty nesters!
Here is your chance to secure this modern, four-bedroom home on a low-maintenance section.
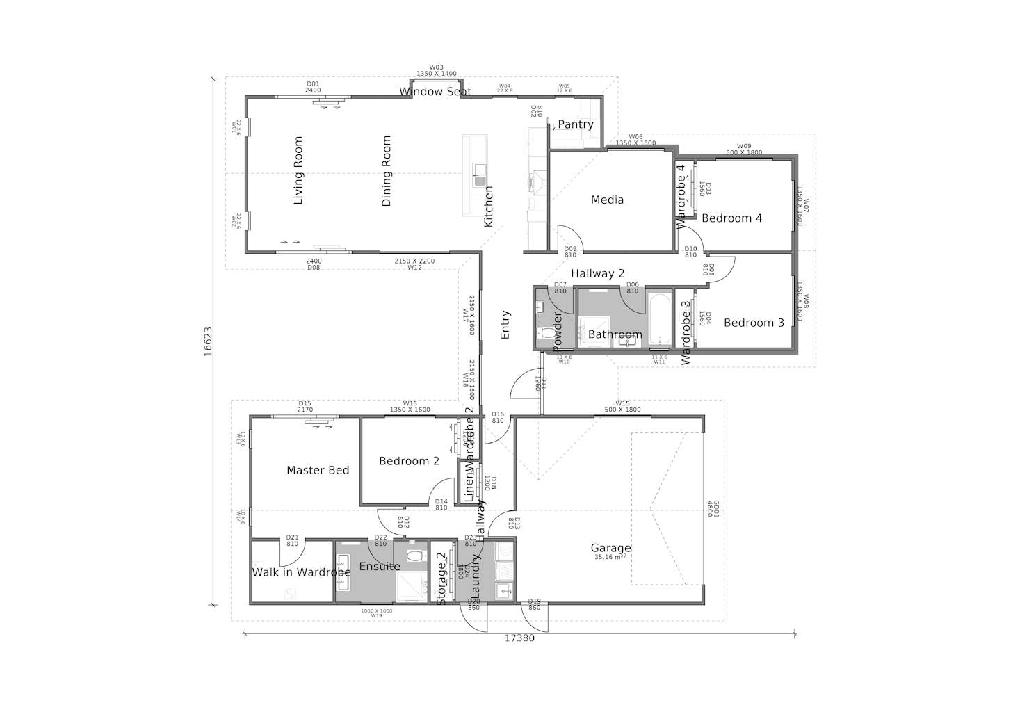
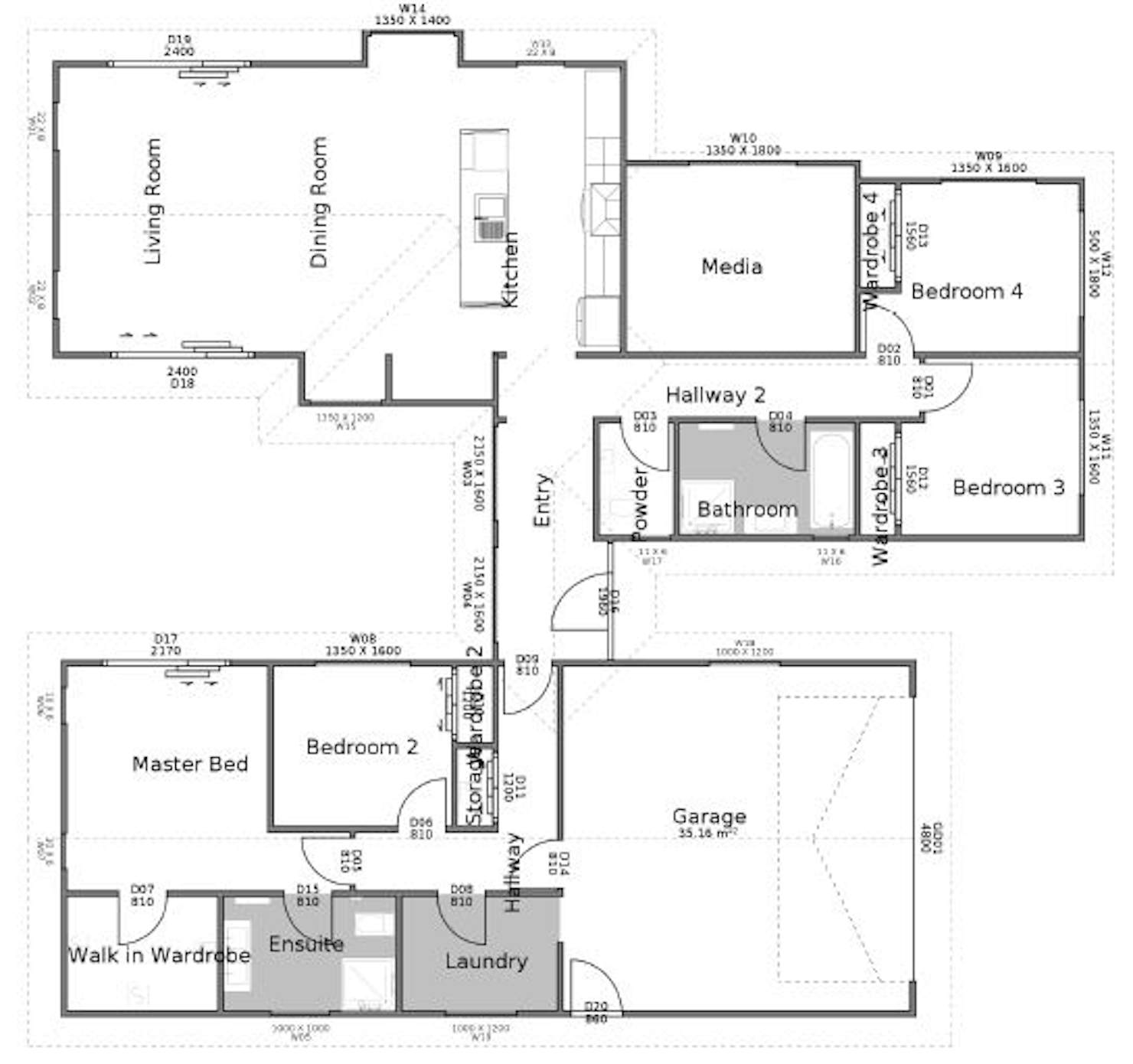
This modern home features four double bedrooms, an open-plan kitchen, living and dining area, a separate media room, two bathrooms plus a powder room, and a built-in separate laundry – an ideal layout for families or empty nesters!
On a north-facing section located in a quiet, elegant neighbourhood, this is your new dream home!
Paerata Rise is a new build lifestyle community developed between Karaka and Pukekohe, approximately 40 minutes from Central Auckland, comprising 4,500 new houses intertwined with green spaces, cycle paths and walkways. It includes 5ha of neighbourhood reserves, schools, a retail precinct, and a transport hub with a railway station.
House & Land package includes:
- 200m2 of internal living
- 567m2 of north-facing land
- Double Garage
- Four generous bedrooms, including a master suite
- Raked ceilings – Living, Dining, & Kitchen
- Media Room
- Heat Pump
- Topsoil, grass seed & some landscaping
- Designer kitchen with Fisher & Paykel appliances and walk-in-pantry
- Fencing
- Infrastructure Growth Charge (IGC)
Talk to us today - this package won't last long!
Package includes
- Signature Homes market-leading Building Guarantees
- Your choice of internal and external colours
- Fixed Price Guarantee
Floorplans: Perfect Family Living in Paerata Rise - 100% Fixed Price




Location
Lot 145, Stage 10A, Paerata Rise
