







































PAERATA RISE - 100% FIXED PRICE - Bring the Whole Family!
From $1,312,500
Lot 182, Stage 8, Paerata Rise
Section size 421㎡
House size 216㎡
- Beds5
- Bathrooms3.5
- Receptions2
- Parking2
or email benwheeler@signature.co.nz
Visit Signature Homes Papakura & Franklin
Enquire about this Package
PAERATA RISE - 100% FIXED PRICE - Bring the Whole Family!
Lot 182, Stage 8, Paerata Rise
Your chance to secure this architecturally designed home!
Here is your chance to secure this double-storey, architecturally designed, five-bedroom home in the sought-after area of Paerata Rise.
On an elevated section located in a quiet, elegant neighbourhood, this is your new dream home!
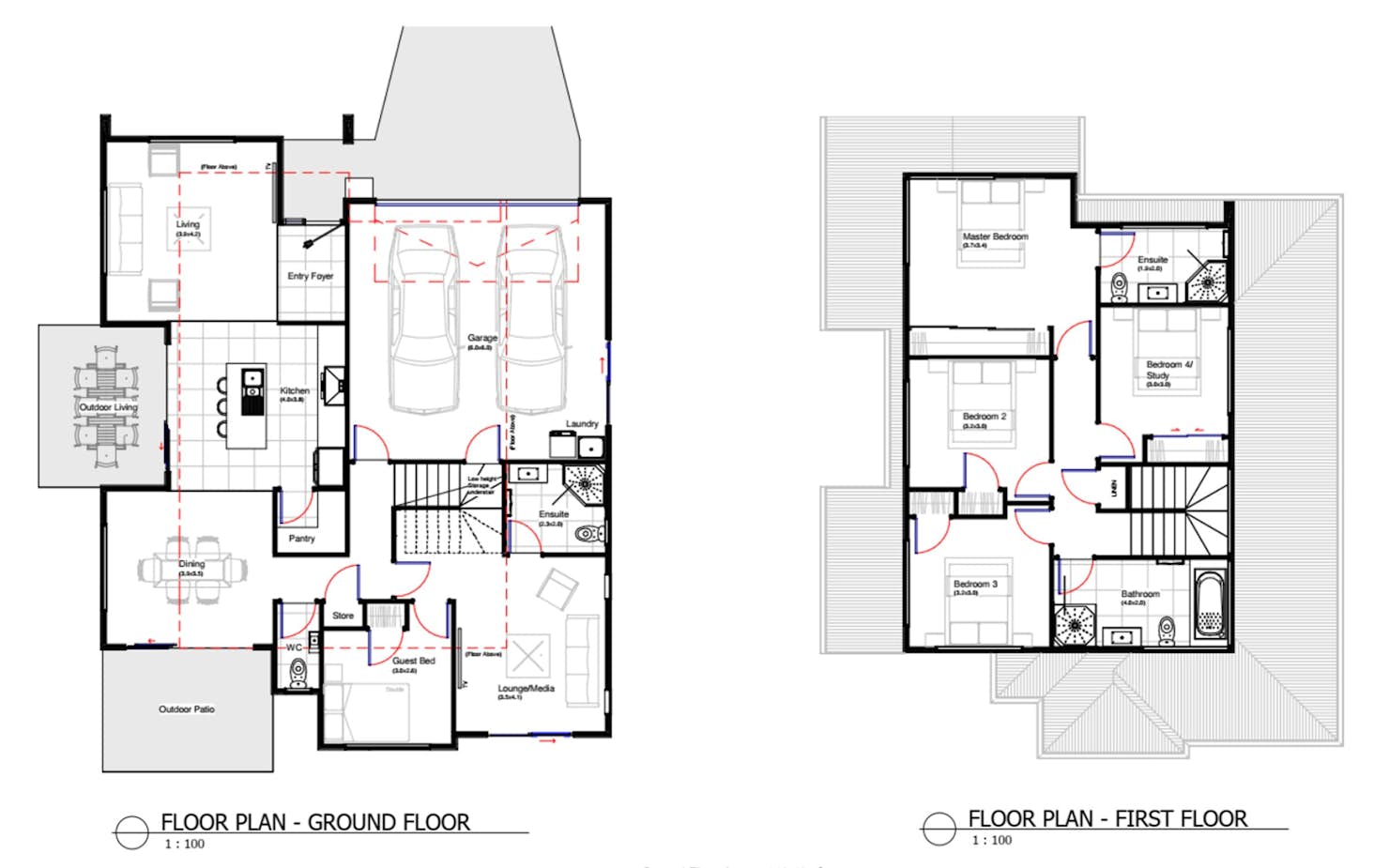
This modern home has five double bedrooms, three bathrooms, a separate toilet, an open plan kitchen, dining, living, plus a media room - an ideal home for large families or those looking for more space.
Paerata Rise is a new build lifestyle community developed between Karaka and Pukekohe, approximately 40 minutes from Central Auckland, comprising 4,500 new houses intertwined with green spaces, cycle paths and walkways. It includes 5ha of neighbourhood reserves, schools, a retail precinct, and a transport hub with a railway station.
House & Land package features include:
- 216m2 of internal living
- 421m2 of north-facing land
- Double Garage
- Five generous bedrooms, including a master suite
- Two stunning family bathrooms + ensuite + WC
- Heat Pump
- Topsoil, grass seed & some planting
- Fencing
- Designer kitchen with SMEG appliances
Talk to us today - this package won't last long!
Package includes
- Signature Homes market-leading Building Guarantees
- Your choice of internal and external colours
- Fixed Price Guarantee
Floorplans: PAERATA RISE - 100% FIXED PRICE - Bring the Whole Family!




Location
Lot 182, Stage 8, Paerata Rise
