























Final Home Left at Rosetta! Move In Ready!
From $1,049,000
Lot 6, 23 Rosetta Lane, Milldale
Section size 226㎡
House size 139㎡
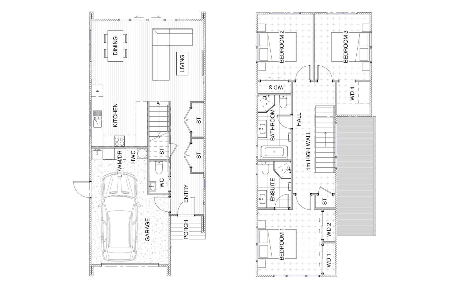
- Beds3
- Bathrooms2.5
- Receptions1
- Parking3
or email trishday@signature.co.nz
Visit Signature Homes Rodney & North Shore
Enquire about this Package
Final Home Left at Rosetta! Move In Ready!
Lot 6, 23 Rosetta Lane, Milldale
Big on comfort, small on hassle in Milldale!
Welcome to Rosetta Lane, an exclusive 8-lot subdivision by Signature Homes offering bush views & walkway access. Enjoy rare seclusion while conveniently close to Milldale town center, parks, and Ahutoetoe School. The final home features low-maintenance gardens, a single-car garage, and two driveway parks - the perfect home for families, investors, or those downsizing.
This is the last move-in-ready home left, don’t miss your chance to call Rosetta Lane home!
Upstairs, discover three cozy bedrooms with scenic elevated views & ducted heating. Downstairs, the heart of the home features a modern kitchen and open-plan living area. Step out onto the sun-soaked, north-facing deck & enjoy the view of the landscaped garden. A gate offers direct access to the nearby walkway, ideal for peaceful strolls and bike rides.
Features:
- Three double bedrooms with elevated views
- Open-plan living area that seamlessly extends onto the deck
- Custom-designed kitchen
- Fisher & Paykel appliances
- Heat Pump in the downstairs area
- Full ducting to the upstairs area
- Fully tiled showers
- Single-car garage and driveway parking for two cars
- Deck, garden & direct access to the walkway
- Includes landscaping, decking, full fencing, and gates to the property
- Market-leading Guarantees including 2 years maintenance cover & 100% fixed price
Package includes
- Signature Homes market-leading Building Guarantees
- Your choice of internal and external colours
- Fixed Price Guarantee
Floorplans: Final Home Left at Rosetta! Move In Ready!




Location
Lot 6, 23 Rosetta Lane, Milldale