





























Modern One-Level Coastal Retreat at Hobbs Bay
From $2,099,000
Lot 26, Hobbs Bay Estate, Gulf Harbour
Section size 715㎡
House size 204㎡
- Beds3
- Bathrooms2
- Receptions1
- studies1
- Parking2
or email trishday@signature.co.nz
Visit Signature Homes Rodney & North Shore
Enquire about this Package
Modern One-Level Coastal Retreat at Hobbs Bay
Lot 26, Hobbs Bay Estate, Gulf Harbour
Where family memories are made in Hobbs Bay
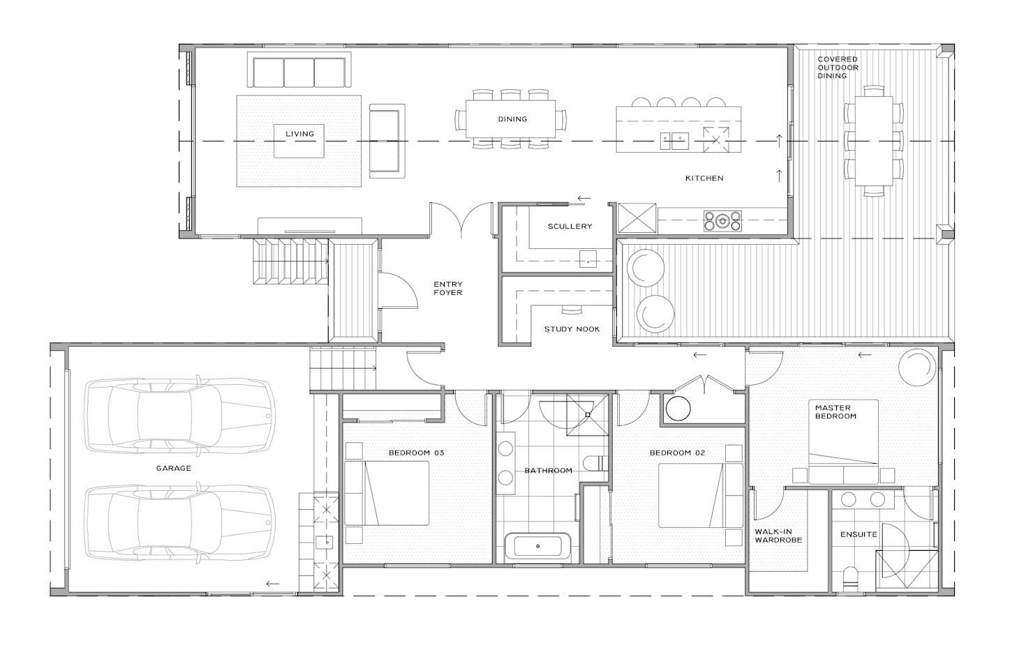
Your new coastal lifestyle awaits at Lot 26, Hobbs Bay. This architecturally designed home is designed for modern comfort and functionality. One wing of the home includes three spacious bedrooms and a family bathroom. While the master suite features deck access, walk-in wardrobe, and an ensuite. A built-in study and open-plan kitchen with a hidden scullery enhance convenience. The dining and living areas showcase ocean views and flow seamlessly to a covered outdoor deck, perfect for year-round entertaining.
Hobbs Bay Estate is a premium waterfront subdivision by the renowned Hopper Developments. It features spacious residential lots, stunning sea views across the harbour to Auckland CBD, wide roads, and convenient boat and walking access to Hobbs Bay Beach.
Key Features:
- Designed for modern comfort and functionality
- Three spacious bedrooms and a family bathroom in one wing
- Master suite with deck access, walk-in wardrobe, and ensuite
- Built-in study for added versatility
- Open-plan kitchen with hidden scullery
- Dining and living areas with ocean views
- Seamless flow to covered outdoor deck
- Double car garage with off-street parking
Pricing is subject to final earthworks & specifications. Watercare IFC, custom cabinetry & landscaping are excluded from the price.
Package includes
- Signature Homes market-leading Building Guarantees
- Your choice of internal and external colours
- Fixed Price Guarantee
Floorplans: Modern One-Level Coastal Retreat at Hobbs Bay




Location
Lot 26, Hobbs Bay Estate, Gulf Harbour
