












Matamata Comfort Meets Modern Style - Lot 1
From $819,000
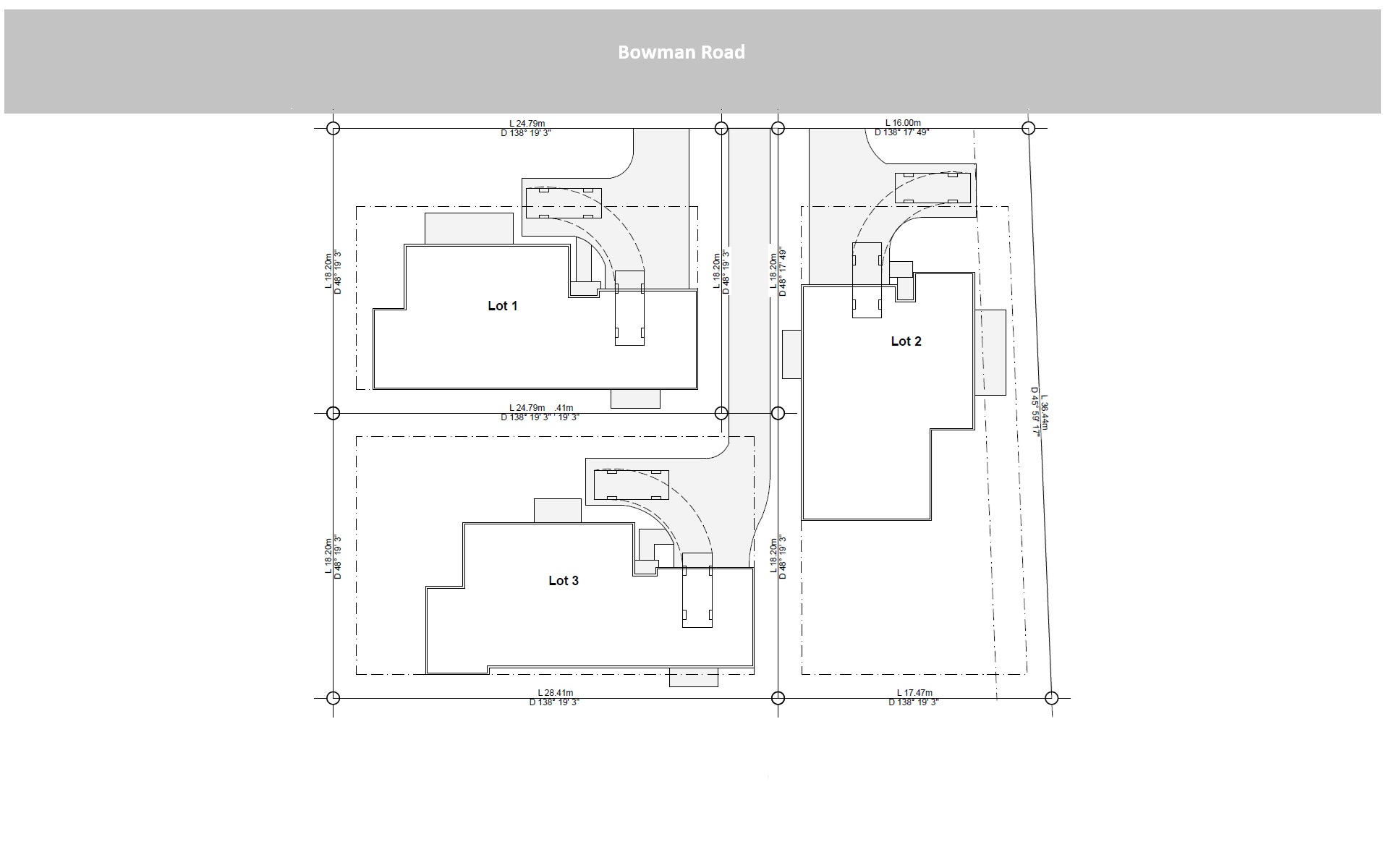
10a Bowman Road, Matamata
Section size 451㎡
House size 159㎡
- Beds3
- Bathrooms2
- Receptions1
- Parking2
Enquire about this Package
Matamata Comfort Meets Modern Style - Lot 1
10a Bowman Road, Matamata
Discover relaxed, family-friendly living building this 3-bedroom, 2-bathroom home and land package with double garaging, superbly located on Bowman Road in Matamata.
Set in the heart of the vibrant Matamata community, you’ll enjoy everything this growing township is known for—excellent cafés and eateries, quality local schools, and a friendly rural atmosphere. Weekend adventures are right at your doorstep with scenic walking tracks, sports facilities, and the world-famous Hobbiton Movie Set just minutes away.
Matamata’s central location also offers an easy commute to Hamilton, Tauranga, and the wider Waikato.
This house & land package is yet to be built, giving you the chance to work with our team on your colour selections and finishings
This House & Land Package Includes:
- 451m2 Freehold Section
- 159m2 Home
- 3 Bedroom 2 Bathroom
- Open plan Kitchen, Living, Dining
- Clothesline
- Fencing
- Hydro seeded Lawns
- Letter Box
- Exterior Concrete
*Images are an artist's impression
Give us a call today to let one of our experienced team guide you through.
Our Market Leading Guarantees at Signature Homes, we offer independently bonded Building Guarantees for complete cover and protection for our clients' investments during the build and long after we have handed over the keys.
Package includes
- Signature Homes market-leading Building Guarantees
- Your choice of internal and external colours
- Fixed Price Guarantee
Location
10a Bowman Road, Matamata

