























Low-Maintenance in Warkworth - First Home Buyers Dream!
From $950,000
Warkworth Ridge, Warkworth
Section size 302㎡
House size 110㎡
- Beds2
- Bathrooms1
- Receptions1
- studies1
- Parking1
or email trishday@signature.co.nz
Visit Signature Homes Rodney & North Shore
Enquire about this Package
Low-Maintenance in Warkworth - First Home Buyers Dream!
Warkworth Ridge, Warkworth
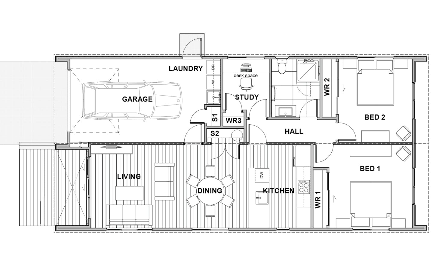
Enjoy effortless living in this modern two-bedroom home, ideal for professionals or small families. The light-filled open-plan kitchen, living, and dining area flows to a sunny covered deck, perfect for relaxing or entertaining. With two spacious bedrooms, a family bathroom, dedicated study, and single garage with integrated laundry area, this home offers low-maintenance living, style, and convenience.
Secure your brand-new home & start your new home journey with Signature Homes today!
Warkworth Ridge is perfectly positioned in the scenic rolling hills of Warkworth, just 45 minutes from Auckland Central. This thoughtfully planned community offers a relaxed lifestyle, with parks, cycleways, and Pak’nSave all just moments from your front door.
Feature included:
- Two well-sized double bedrooms with wardrobes
- Dedicated office, perfect for working from home
- Open-plan kitchen, living, and dining area
- Custom-designed kitchen with quality finishes
- Heat pump for year-round comfort in the living area
- Large family bathroom
- Covered outdoor living on deck
- Single car garage with integrated laundry area
Renders are for illustrative purposes only and are intended as an artist’s impression
Package includes
- Signature Homes market-leading Building Guarantees
- Your choice of internal and external colours
- Fixed Price Guarantee
Floorplans: Low-Maintenance in Warkworth - First Home Buyers Dream!




Location
Warkworth Ridge, Warkworth
