























Golden Bay - Three Bedroom Double Storey Duplex ; Lots 2 & 3
From $850,000
Meihana Street, Takaka
Section size 510㎡
House size 141㎡
- Beds3
- Bathrooms2
- Receptions1
- Parking1
or email nelson@signature.co.nz
Visit Signature Homes Nelson & Tasman
Enquire about this Package
Golden Bay - Three Bedroom Double Storey Duplex ; Lots 2 & 3
Meihana Street, Takaka
Modern, Connected Living Starts Here
Seize the opportunity to own a new home centrally located in Golden Bay with this meticulously crafted three-bedroom, double-storey duplex. Designed with flow and functionality in mind, each home offers an open-plan layout that maximises natural light and creates a tranquil, private retreat. The airy living area features a double-height void, enhancing spaciousness with the option to convert it into a fourth bedroom.
With planned parklands directly behind these sections and a welcoming cohousing community and community gardens nearby, this location offers a serene and harmonious setting to call home. Walk to schools, shops and a short drive to the beach, this is coastal living at its best.
This is more than a house—it’s a chance to embrace a new way of life. Make it yours and begin the next chapter today!
Available Now: Lots 2 & 3 - Starting from $840,000
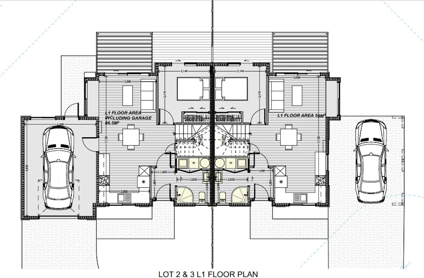
The Home:
Ground Floor:
- Welcoming spacious entrance hall
- Modern, bright kitchen featuring custom shelving by Respace and designer finishes by Bays Joinery
- Quality appliances by Smeg or Fisher & Paykel
- Open-concept living and dining areas, perfect for entertaining
- Double-height void in the living area, with an option to convert into a fourth bedroom
- One double bedroom and a full bathroom
First Floor:
- Two additional double bedrooms for family or guests
- A second, spacious bathroom
- A flexible study area and balcony with views overlooking the living room
Exterior:
- Private deck and garden area, ideal for outdoor relaxation and gatherings
- Sustainable Design & Quality Craftsmanship:
Each home is built with locally sourced, eco-friendly materials for energy efficiency and sustainability:
- Insulated BC1 slab foundation
- Natural Hempcrete and Macrocarpa cladding with a durable finish
- Thermal Heart Joinery and Low-E glass for optimal energy savings
- Non-toxic materials: Terra Lana insulation, LED lighting, wool carpet, and locally made natural paints
Package includes
- Signature Homes market-leading Building Guarantees
- Your choice of internal and external colours
- Fixed Price Guarantee
Floorplans: Golden Bay - Three Bedroom Double Storey Duplex ; Lots 2 & 3






Location
Meihana Street, Takaka
