

































Investor Friendly with this FIXED PRICED Package
From $894,849
16 Roka Street, Bell Block
Section size 526㎡
House size 162㎡
- Beds4
- Bathrooms2
- Receptions1
- Parking2
or email mizakenquiry@signature.co.nz
Visit Signature Homes Taranaki
Enquire about this Package
Investor Friendly with this FIXED PRICED Package
16 Roka Street, Bell Block
Make the most of our Fixed Priced packages which also includes a Guaranteed Completion Date
This 4-bedroom House & Land package located in Bell Block presents an opportunity for an astute investor to secure an investment property that promises good returns.
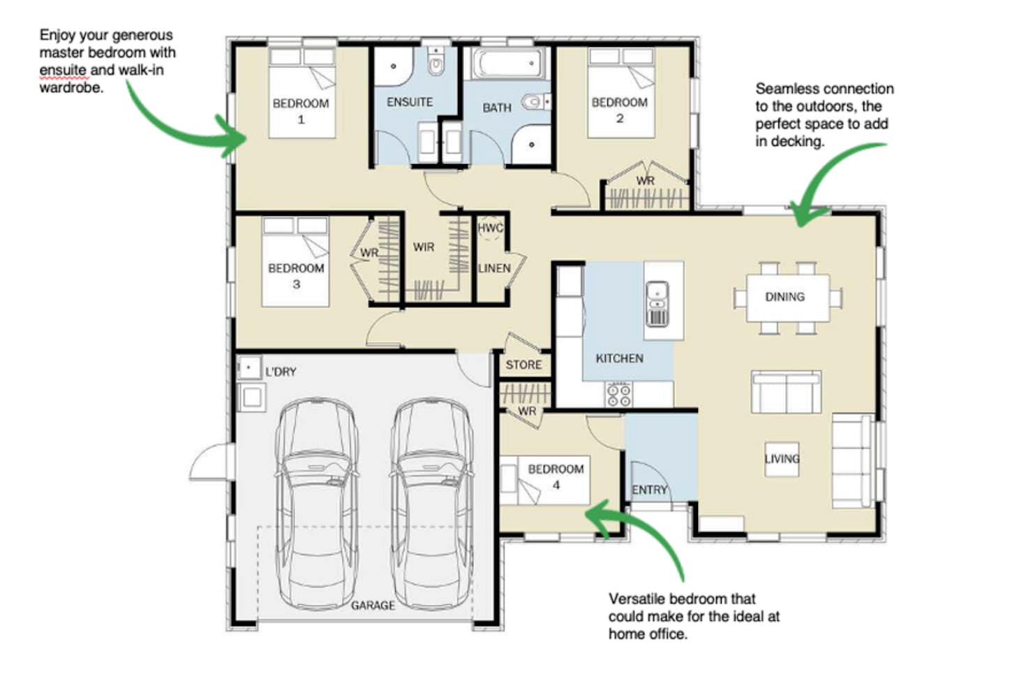
You are buying a Signature Homes House & Land package, with a north-facing aspect, 162m2 of internal living, 4 generous bedrooms with an ensuite in the master bedroom, 2 bathrooms, double car garaging on 526m2 of land.
Key selling features include:
- Positioned in a high-growth area that is seeing significant investment in the area
- Estimate rental return of $725-$750 per week
- Brand new, modern home will require little maintenance
- Section is titled and ready to be built
House & Land Package includes:
- Heat Pump
- Driveway & Concrete Patio
- Block out roller blinds
- Advertised package excludes landscaping with pricing to include these items available on request
This Signature Homes House and Land package promises to attract long-term tenants due to its strategic positioning within an already established residential area. Sought-after amenities including schooling, access to public transport, public reserve with children playground and more.
**Package is subject to final site survey**
Package includes
- Signature Homes market-leading Building Guarantees
- Your choice of internal and external colours
- Fixed Price Guarantee
Floorplans: Investor Friendly with this FIXED PRICED Package








Location
16 Roka Street, Bell Block