

















Feilding Family Haven
From $960,000
6 Turoa Street, Feilding
Section size 649㎡
House size 188㎡
- Beds3
- Bathrooms2
- Receptions2
- Parking2
Feilding Family Haven
6 Turoa Street, Feilding
Newly established boutique subdivision!
Turoa Street is a newly established boutique subdivision that captures the best reasons people are proud to call the Manawatu home.
Number 6 Turoa Street is a 649m2 site, and the title for number 6 is ready now! Start your new build journey right away.
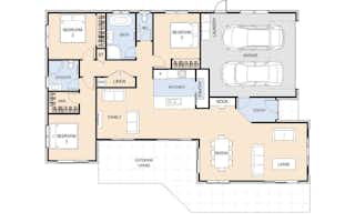
For this lot, we’ve chosen our Juniper plan, designed to suit a range of different lifestyles and lifestages.
The design features considerate spaces for everyone to relax or entertain in, with the living area and family room separated by the hub of the house, the modern kitchen.
The spacious layout incorporates three double bedrooms, two bathrooms including an ensuite, a study nook and internal acess to a double garage.
Find your place at Turoa Street:
You only need to stand on the land to understand why this new residential offering is truly special.
Signature Homes has developed a series of House & Land packages to suit different needs, or we can create a custom design that’s perfectly in tune with your lifestyle and budget. Either way, you will benefit from our best-in-class Fixed Price Contract offering as part of our market-leading building guarantees.
Each section is generous in size, positioned for privacy and in a location that offers the best of both worlds.
You’ll enjoy a relaxed lifestyle on Turoa Street, with all that Feilding has to offer within easy reach. Each home will be unique, where designs will honour the surrounding environment, and open-plan spaces will seamlessly connect to nature.
**Advertised package includes allowance for window dressing and some landscaping is included. Contact Signature Homes Palmerston North & Manawatu for more information.**
Talk to us today about personalising this package to suit your budget and lifestyle.
Package includes
- Signature Homes market-leading Building Guarantees
- Your choice of internal and external colours
- Fixed Price Guarantee
Floorplans: Feilding Family Haven




Location
6 Turoa Street, Feilding
