























Family Haven - Omokoroa
From $899,000
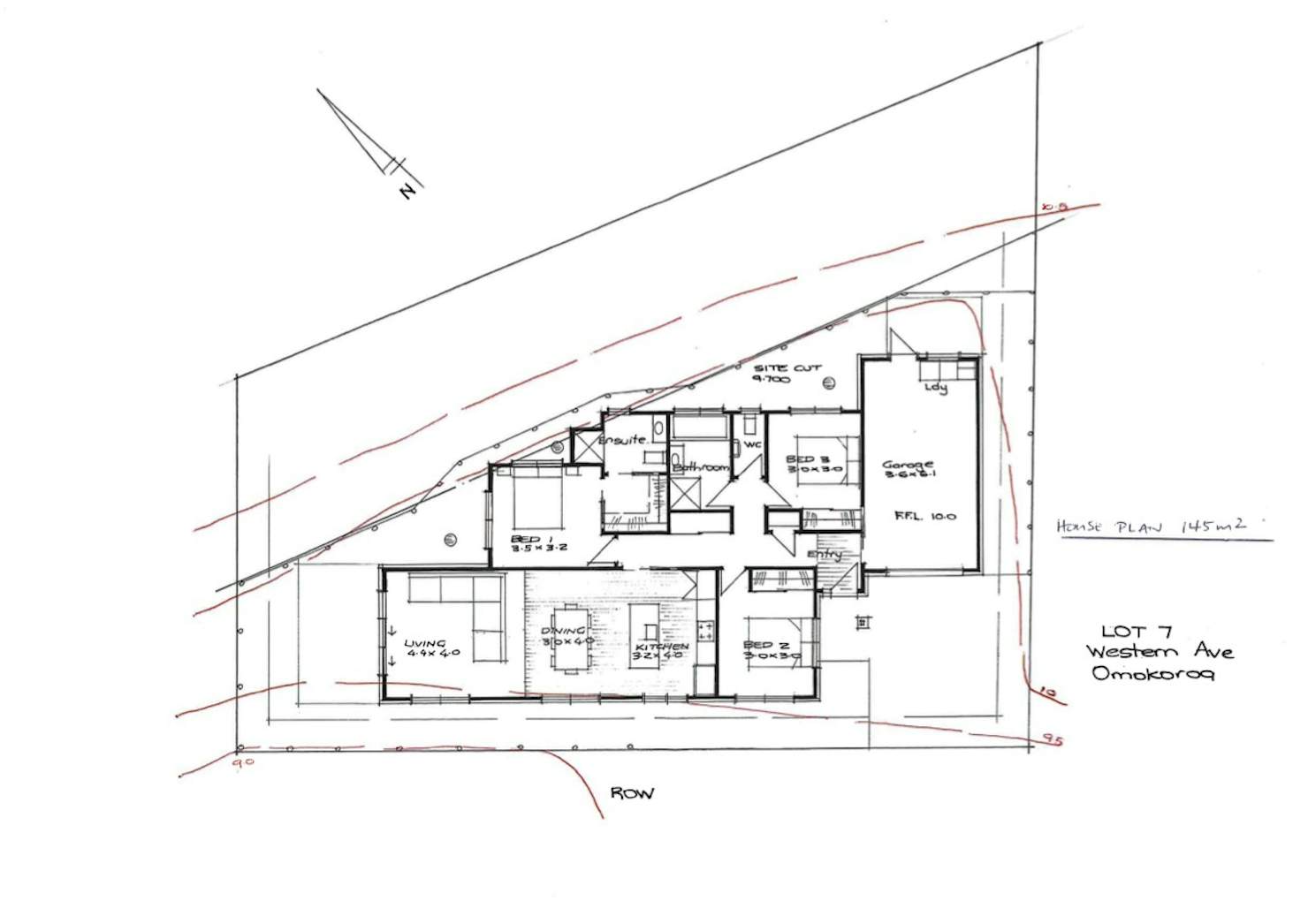
49D Western Ave, Omokoroa
Section size 441㎡
House size 145㎡
- Beds3
- Bathrooms2
- Receptions1
- Parking1
or email DianaWalker@signature.co.nz
Visit Signature Homes Bay of Plenty & Coromandel
Enquire about this Package
Family Haven - Omokoroa
49D Western Ave, Omokoroa
Introducing your perfect new home in the heart of Omokoroa!
This meticulously designed house and land package, nestled on a generous 441 sqm (more or less) north-facing section, offers the epitome of modern living with a captivating outlook to the reserve.
Step inside the 145 sqm home and discover a seamless fusion of comfort and style. The open living and dining area beckons with its welcoming ambience, effortlessly extending into an outdoor living space where gatherings await.
The Best Bits:
- Build with NZ’s best building guarantees
- Coastal living
- Close-knit community
- This location provides activities right at your doorstep - A golf course, a sports park, and the library
Perfect for retirees or families seeking tranquillity and relaxation, this home presents a perfect opportunity to embrace coastal living in Omokoroa.
Don't miss out on this opportunity to make this your new home. Welcome home.
Package Includes:
- 145 sqm (more or less) brand new home
- 441 sqm (more or less) section
- Brick and Weatherboard exterior
- Three double bedrooms - Master with ensuite and walk-in wardrobe
- One Ensuite and one shared bathroom with separate W/C
- Light and airy open plan living space
- Bespoke kitchen design and quality BOSCH appliances
- Flooring covering ( Vinyl planking & Carpet )
- Single Garage
- Heat pump
- Sought after location – handy to all amenities yet far away from the hustle and bustle of the city
- A full specifications sheet is available upon request
- Pricing excludes earthworks, permit fees, Geotech report, and site surveys
**The images advertised are an indication of what can be built on this site for the package price and are artist impressions only.**
Don't like the H&L plan? - We can design & build your new home to suit on this site.
Package includes
- Signature Homes market-leading Building Guarantees
- Your choice of internal and external colours
- Fixed Price Guarantee
Floorplans: Family Haven - Omokoroa




Location
49D Western Ave, Omokoroa
