



















Elegant Living on Prestigious Bayview Road
From $1,445,000
112 Bayview Road, Atawhai
Section size 736㎡
House size 206㎡
- Beds3
- Bathrooms2.5
- Receptions2
- Parking2
or email nelson@signature.co.nz
Visit Signature Homes Nelson & Tasman
Enquire about this Package
Elegant Living on Prestigious Bayview Road
112 Bayview Road, Atawhai
Coastal Living at Its Finest - Bayview Road Gem
Perched atop this stunning landscape in Atawhai, you'll be captivated by the breathtaking panoramic views that extend endlessly. Bathed in the sun's warm glow, this elevated site offers a serene and peaceful setting where every moment feels like a gentle embrace from nature itself.
The House:
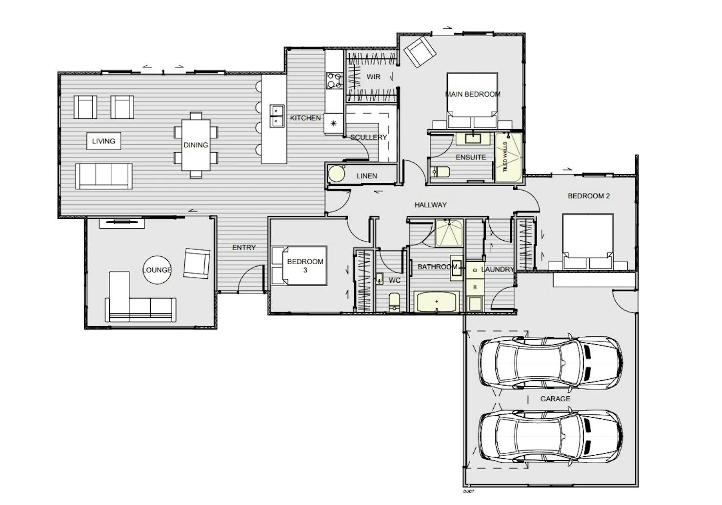
This generous three-bedroom home boasts open-plan living spaces, thoughtfully designed to enhance space and natural light. With ample room sizes and a seamless flow between the north-facing living, dining, and kitchen areas, it provides an ideal relaxing and entertaining environment.
Features include:
- Three double bedrooms
- Master with ensuite and walk-in wardrobe
- Open-plan kitchen, dining, lounge, and living
- Separate Lounge
- Internal access to the garage
- Includes driveway, retaining walls, hardwood deck
Our Signature Series offers a variety of pre-designed house plans that embody the quintessential Kiwi lifestyle with their open-plan layouts and practical designs. These homes are crafted to provide exceptional value without compromising on quality.
Package includes
- Signature Homes market-leading Building Guarantees
- Your choice of internal and external colours
- Fixed Price Guarantee
Floorplans: Elegant Living on Prestigious Bayview Road




Location
112 Bayview Road, Atawhai
