

















Build your Dream Home in Kotare Heights - Lot 37
From $918,658
371 Korimako Drive, (Lot 37), Kotare Heights, Te Awamutu
Section size 540㎡
House size 173㎡
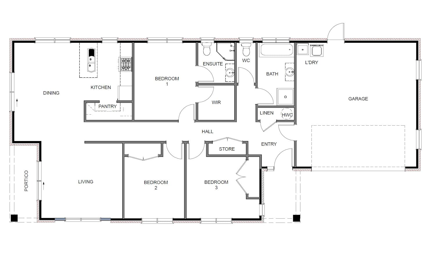
- Beds3
- Bathrooms2.5
- Receptions1
- Parking2
Enquire about this Package
Build your Dream Home in Kotare Heights - Lot 37
371 Korimako Drive, (Lot 37), Kotare Heights, Te Awamutu
Kotare Heights - an exciting new community.
Build your dream home with Signature Homes Waikato in this new subdivision with our fixed price guarantee.
Close to Te Awamutu's town centre and with views of Kakepuku and Mount Pirongia, Kotare Heights is an exciting new community.
This clever design is a dream home for any family. Offering a spacious layout, open plan living with indoor/outdoor flow
This house & land package is yet to be built, giving you the chance to select your interior & exterior colours whilst working with our colour consultant.
This House & Land Package Includes:
- 540m2 Section
- 173m2 Family Home
- 3 Bedroom
- 2 Bathroom
- Separate WC
- Open plan Kitchen, Living & Dining
- Heatpump
- Clothesline
- Fencing
- Letterbox
- Hydro seeded Lawns
- Front Yard Landscaping Allowance
*Render is an artist's impression
Package includes
- Signature Homes market-leading Building Guarantees
- Your choice of internal and external colours
- Fixed Price Guarantee
Floorplans: Build your Dream Home in Kotare Heights - Lot 37




Location
371 Korimako Drive, (Lot 37), Kotare Heights, Te Awamutu
