























Idyllic Retreat & Rural Lifestyle Awaits at Palliser Downs!
From $3,000,000
Lot 41, Palliser Downs, Wainui
Section size 11000㎡
House size 330㎡
- Beds4
- Bathrooms3.5
- Receptions2
- studies1
- Parking2
or email simonw@signature.co.nz
Visit Signature Homes Rodney & North Shore
Enquire about this Package
Idyllic Retreat & Rural Lifestyle Awaits at Palliser Downs!
Lot 41, Palliser Downs, Wainui
A serene escape where the city meets the countryside
Palliser Downs offers a limited selection of spacious rural lots within the bespoke subdivision. Enjoy a private and peaceful retreat, just 15 minutes from Orewa and only a 25-minute drive to Auckland CBD.
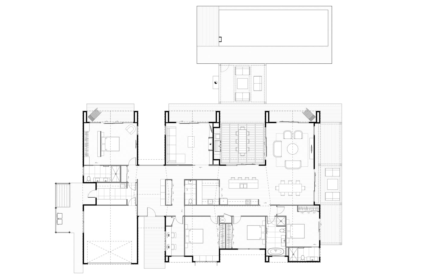
Lot 41 is an architecturally designed masterpiece by LTD Architecture, which spans a generous 330m² - offering a perfect blend of style and functionality. The home boasts raking ceilings and gable windows, allowing natural light to flood the open-plan living, dining, and kitchen areas. With four spacious bedrooms, including a master suite that opens onto a private deck, the home provides ample space for comfort and relaxation.
The property also features three well-appointed bathrooms and a convenient wash closet. Additional amenities include a media room, an office/study, and three outdoor covered living areas, perfect for entertaining or unwinding. The large pool adds the finishing touch to this luxurious residence, making it an ideal retreat for modern living.
Features:
- Architecturally designed by LTD Architecture
- Large 330m² home
- 1.1Ha section size
- Raking ceilings and gable windows
- Four spacious bedrooms
- Master bedroom with deck
- Open-plan living, dining & kitchen
- Three bathrooms & a wash closet
- Media room, office/study
- Three outdoor covered living areas
- Large pool
Package includes
- Signature Homes market-leading Building Guarantees
- Your choice of internal and external colours
- Fixed Price Guarantee
Floorplans: Idyllic Retreat & Rural Lifestyle Awaits at Palliser Downs!




Location
Lot 41, Palliser Downs, Wainui
