











A Stylish Minor Dwelling - Longview, Lake Hawea
From $755,000
Longview, Lake Hawea
Section size 300㎡
House size 58㎡
- Beds2
- Bathrooms1
- Receptions1
or email carinamckenzie@signature.co.nz
Visit Signature Homes Central Otago
Enquire about this Package
A Stylish Minor Dwelling - Longview, Lake Hawea
Longview, Lake Hawea
Your Signature package, made easy
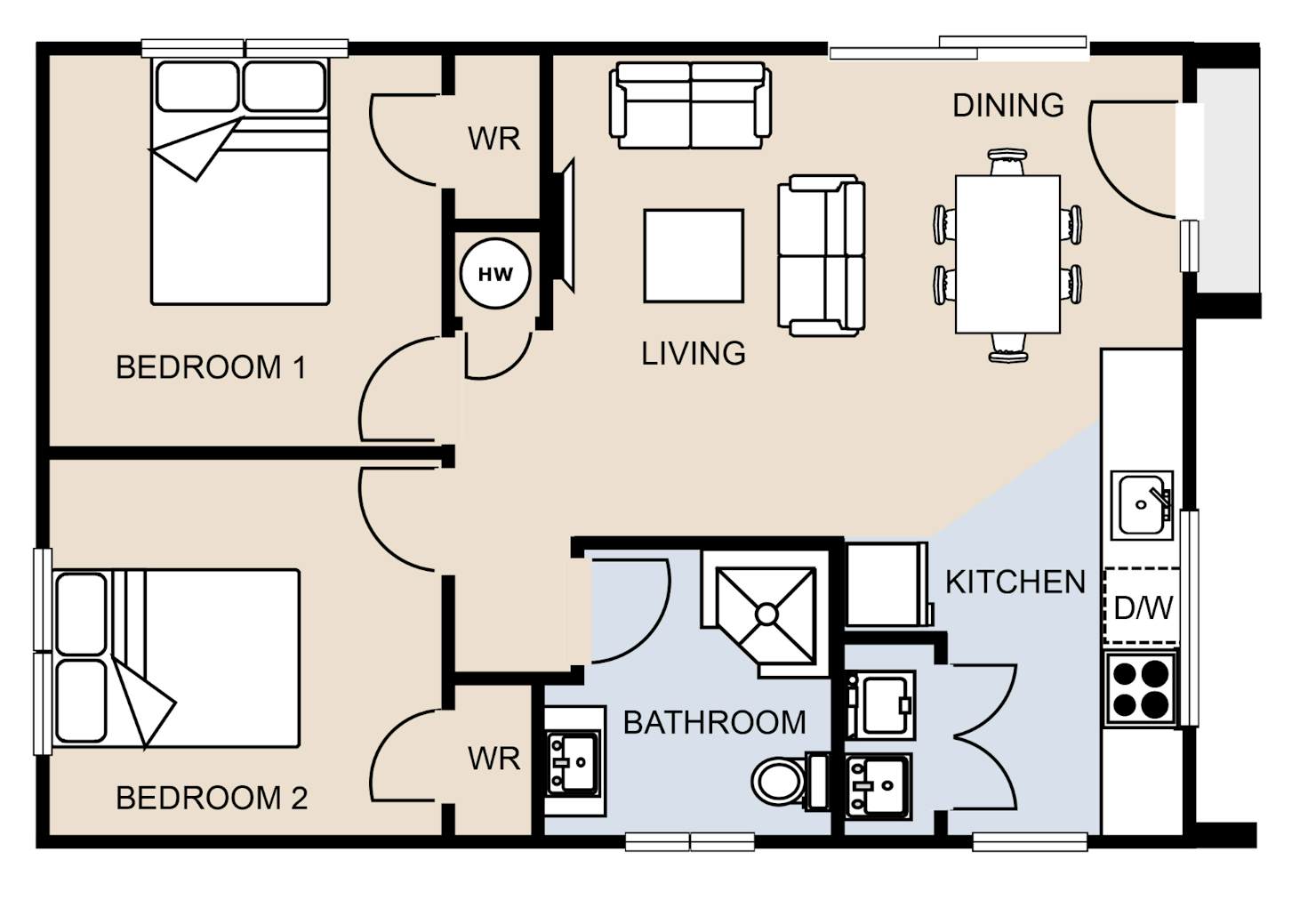
Discover practical elegance with our two-bedroom minor dwelling, designed for efficient use of space without compromising style. This compact home includes a well-appointed kitchen, a full bathroom, and a living area that supports relaxation and entertaining. It is ideal for those seeking a smaller footprint with all the comforts of contemporary living. Located on lot 68 in the sought-after Longview subdivision in Lake Hawea.
Signature features
- 58m2 of living
- 300m2 section
- Open plan kitchen, living & dining
- 5 Rib Iron and Weatherboard cladding
- 70m2 of concrete for Drive, Path and Patio
Longview is a stunning master-planned community located in the picturesque Lake Hawea.
Longview will be a thriving community that will be home to 480 well-designed residential homes, a 3.5Ha township service centre, two recreational reserves and 360-degree mountain views.
Lake Hawea is an adventure playground, where Longview is only minutes from the lake and an abundance of nature walks. There will be no reason to leave once you move into your new home at Longview.
Our Signature Service Promise
- We believe building your home should feel exciting, not stressful. That’s why when you choose Signature Homes, you’ll get:
- The best building guarantees in NZ - so you can build with total peace of mind.
- The best service in the business - we’re with you every step of the way.
- Fixed pricing - no surprises, just honesty.
- Over 40 years of experience - helping Kiwis create homes they love. Accurate build timelines - so you always know what’s ahead.
Floorplans: A Stylish Minor Dwelling - Longview, Lake Hawea




Location
Longview, Lake Hawea
