































A fresh lifestyle awaits in Waimauku
From $1,680,000
Lot 7, 91 Freshfields Road, Waimauku
Section size 3511㎡
House size 215㎡
- Beds3
- Bathrooms2
- Receptions2
- Parking2
or email deanpritchard@signature.co.nz
Visit Signature Homes West & North-West Auckland
Enquire about this Package
A fresh lifestyle awaits in Waimauku
Lot 7, 91 Freshfields Road, Waimauku
Build your next chapter at Freshfields, Waimauku. This house and land package offers modern, quality living on a generous 3,511 m² section combining semi-rural calm with easy access to local amenities.
Tucked away on a private right-of-way, Freshfields is just minutes from Kumeu and Huapai. This exclusive development features nine thoughtfully positioned site, an increasingly rare opportunity as land sizes shrink. Here you’ll enjoy wide-open spaces, fresh country air, and genuine tranquillity, while staying close to cafés, shops, and community hubs. The surrounding area offers local vineyards, scenic walking and cycling trails, and the west coast beach at Muriwai.
The development preserves green space and generous sections, giving you the freedom to shape your home exactly as you wish. With Waimauku Kindergarten and Primary School just a short walk away, it’s well connected to a welcoming community.
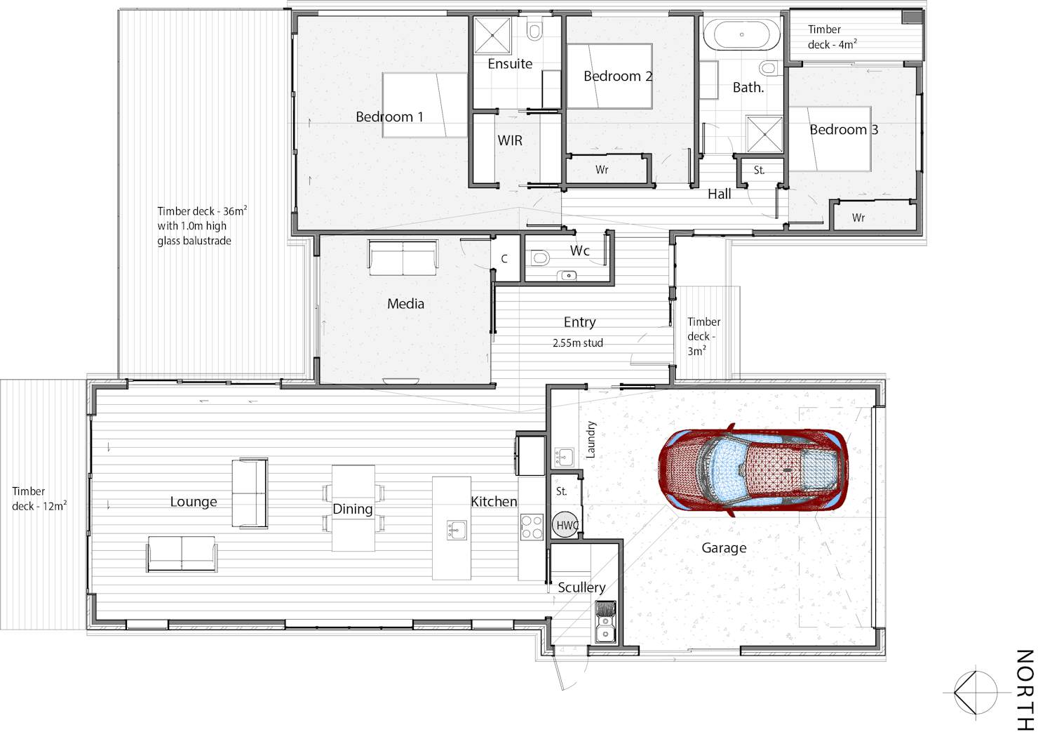
The home is designed for everyday life and entertaining. Open-plan living and dining areas are filled with natural light and open onto an extensive outdoor area, creating a relaxed connection to nature. The kitchen is built for entertaining, making hosting effortless.
Consisting of three bedrooms, the master suite has its own private patio, offering a personal retreat at the end of the day. A separate multi-use space provides flexibility, ready to serve as a media room, family area, home office, or formal lounge, adapting as your lifestyle changes.
Signature Features:
- Master suite with private patio
- Separate multi-use space for media, family, office, or formal lounge
- Open-plan living and dining with direct outdoor access
- Semi-rural setting on 3,511 m² section surrounded by native greenery
- All-inclusive fixed pricing covering house, land, and site costs
Our Signature Service Promise:
We believe building your home should feel exciting, not stressful. That’s why when you choose Signature Homes, you’ll get:
- The best building guarantees in NZ – so you can build with total peace of mind
- The best service in the business – we’re with you every step of the way.
- Fixed pricing – no surprises, just honesty.
- Over 40 years of experience – helping kiwis create homes they love.
- Accurate build timelines – so you always know what’s ahead.
Ready to stop dreaming and start building your future? Contact Signature Homes West & North-West Auckland today and let's turn that vision into your front door key.
All our house and land packages are fully customisable and can be tailored to suit your lifestyle and needs. Final home appearance will vary based on your design choices. Price is subject to engineering and final design requirements.
WAI19
Package includes
- The best building guarantees in NZ – so you can build with total peace of mind
- The best service in the business – we’re with you every step of the way.
- Fixed pricing – no surprises, just honesty.
- Over 40 years of experience – helping kiwis create homes they love.
- Accurate build timelines – so you always know what’s ahead.
Floorplans: A fresh lifestyle awaits in Waimauku




Location
Lot 7, 91 Freshfields Road, Waimauku