

























Dream Architectural Home & Rural Lifestyle at Palliser Downs!
From $3,000,000
Lot 55, Palliser Downs, Wainui
Section size 24000㎡
House size 338㎡
- Beds4
- Bathrooms3.5
- Receptions2
- Parking3
or email simonw@signature.co.nz
Visit Signature Homes Rodney & North Shore
Enquire about this Package
Dream Architectural Home & Rural Lifestyle at Palliser Downs!
Lot 55, Palliser Downs, Wainui
A serene escape where the city meets the countryside.
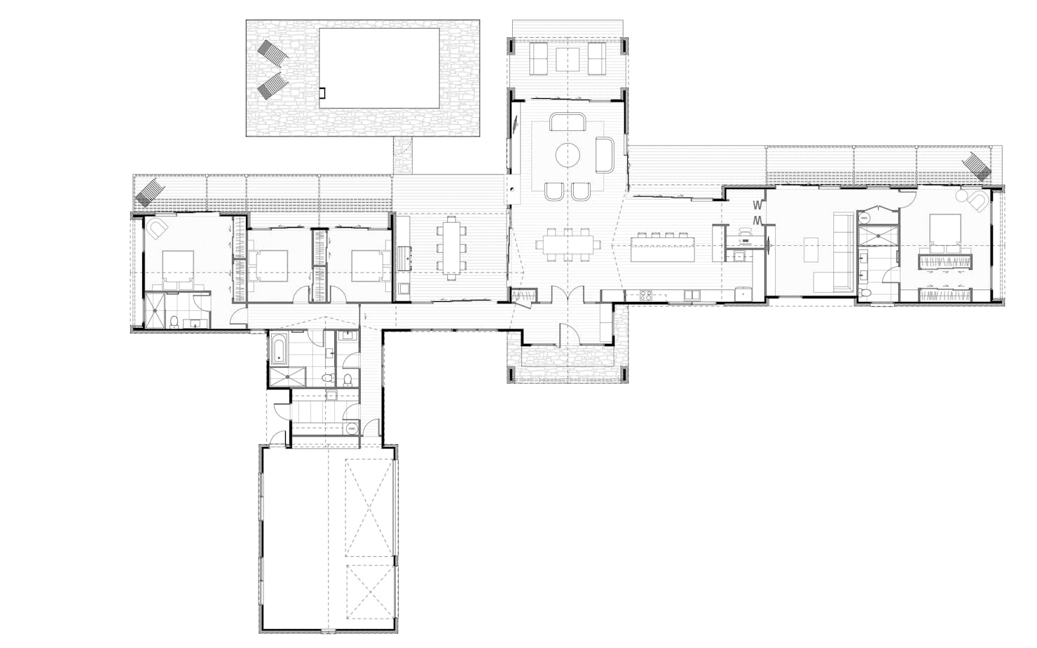
Lot 55 is a 338m² architecturally designed home by LTD Architecture, featuring modern luxury and thoughtful design. With raking ceilings and gable windows, natural light floods the open-plan living, dining, and kitchen areas. The residence includes four spacious bedrooms, a private master suite with its own deck, three bathrooms, a wash closet, and a separate laundry room for convenience.
The property also boasts a media room, two outdoor covered living areas perfect for entertaining, and a large pool for relaxation. Completing the picture is a three-car garage, offering ample space for vehicles and storage, making this home a complete and luxurious retreat.
Palliser Downs offers a limited selection of spacious rural lots within the bespoke subdivision. Enjoy a private and peaceful retreat, just 15 minutes from Orewa and only a 25-minute drive to Auckland CBD.
Features:
- Architecturally designed by LTD Architecture
- Large 338m² home
- 2.4Ha section size
- Raking ceilings and gable windows
- Four spacious bedrooms
- Separate Master bedroom with deck
- Open-plan living, dining & kitchen
- Three bathrooms & a wash closet
- Media room
- Separate laundry room
- Two outdoor covered living areas
- Large pool
- Three-car garage
Package includes
- Signature Homes market-leading Building Guarantees
- Your choice of internal and external colours
- Fixed Price Guarantee
Floorplans: Dream Architectural Home & Rural Lifestyle at Palliser Downs!




Location
Lot 55, Palliser Downs, Wainui
